Rocker Pipe Installation . Learn about their purpose in mitigating differential settlement and preventing structural damage, their standard requirements in various structures, and effective strategies to avoid defects in new pipe installations. In recent years this practise has spread to di (ductile. Web in uk it has always been standard practise to install rocker pipes on drains and sewers at the entrance and exit. Web a ‘rocker pipe’ is a short length of pipe used when installing drainage at connection points with a structure or a manhole. In this video, charles osmond, a groundworks trainer at the ohob training academy explains. Web rocker pipes are short lengths of pipe which will permit differential settlement between the pipe and chamber. The rocker pipe adds some flex. Web explore the crucial role of rocker pipes and flexible joints in sewer and stormwater design. Web what is a rocker pipe?
from www.youtube.com
In this video, charles osmond, a groundworks trainer at the ohob training academy explains. Learn about their purpose in mitigating differential settlement and preventing structural damage, their standard requirements in various structures, and effective strategies to avoid defects in new pipe installations. In recent years this practise has spread to di (ductile. The rocker pipe adds some flex. Web what is a rocker pipe? Web a ‘rocker pipe’ is a short length of pipe used when installing drainage at connection points with a structure or a manhole. Web in uk it has always been standard practise to install rocker pipes on drains and sewers at the entrance and exit. Web explore the crucial role of rocker pipes and flexible joints in sewer and stormwater design. Web rocker pipes are short lengths of pipe which will permit differential settlement between the pipe and chamber.
How To Install Slip on Rockers, 2001 Silverado YouTube
Rocker Pipe Installation Web explore the crucial role of rocker pipes and flexible joints in sewer and stormwater design. Learn about their purpose in mitigating differential settlement and preventing structural damage, their standard requirements in various structures, and effective strategies to avoid defects in new pipe installations. In recent years this practise has spread to di (ductile. Web explore the crucial role of rocker pipes and flexible joints in sewer and stormwater design. Web in uk it has always been standard practise to install rocker pipes on drains and sewers at the entrance and exit. The rocker pipe adds some flex. In this video, charles osmond, a groundworks trainer at the ohob training academy explains. Web what is a rocker pipe? Web a ‘rocker pipe’ is a short length of pipe used when installing drainage at connection points with a structure or a manhole. Web rocker pipes are short lengths of pipe which will permit differential settlement between the pipe and chamber.
From www.scribd.com
rocker pipe.pdf Beam (Structure) Bending Rocker Pipe Installation The rocker pipe adds some flex. In this video, charles osmond, a groundworks trainer at the ohob training academy explains. Web in uk it has always been standard practise to install rocker pipes on drains and sewers at the entrance and exit. Web what is a rocker pipe? Web rocker pipes are short lengths of pipe which will permit differential. Rocker Pipe Installation.
From www.youtube.com
Adding Drainage Pipe & Drain Rock To Retaining Wall YouTube Rocker Pipe Installation Web rocker pipes are short lengths of pipe which will permit differential settlement between the pipe and chamber. Web explore the crucial role of rocker pipes and flexible joints in sewer and stormwater design. Web in uk it has always been standard practise to install rocker pipes on drains and sewers at the entrance and exit. In this video, charles. Rocker Pipe Installation.
From www.youtube.com
How To Install Slip on Rockers, 2001 Silverado YouTube Rocker Pipe Installation Web what is a rocker pipe? Web explore the crucial role of rocker pipes and flexible joints in sewer and stormwater design. In this video, charles osmond, a groundworks trainer at the ohob training academy explains. Web rocker pipes are short lengths of pipe which will permit differential settlement between the pipe and chamber. The rocker pipe adds some flex.. Rocker Pipe Installation.
From www.youtube.com
How To Install Swr PipePVC Pipe Fitting125mm PVC PipePrince Pcc Pipe Rocker Pipe Installation In this video, charles osmond, a groundworks trainer at the ohob training academy explains. In recent years this practise has spread to di (ductile. Web what is a rocker pipe? Web explore the crucial role of rocker pipes and flexible joints in sewer and stormwater design. Learn about their purpose in mitigating differential settlement and preventing structural damage, their standard. Rocker Pipe Installation.
From www.marshalls.co.uk
Concrete Butt/Rocker Jointed Pipes Marshalls Rocker Pipe Installation Web in uk it has always been standard practise to install rocker pipes on drains and sewers at the entrance and exit. In recent years this practise has spread to di (ductile. Learn about their purpose in mitigating differential settlement and preventing structural damage, their standard requirements in various structures, and effective strategies to avoid defects in new pipe installations.. Rocker Pipe Installation.
From www.britcarfixes.com
Help with installing rocker arm assembly Brit Car Fixes Rocker Pipe Installation Web rocker pipes are short lengths of pipe which will permit differential settlement between the pipe and chamber. Learn about their purpose in mitigating differential settlement and preventing structural damage, their standard requirements in various structures, and effective strategies to avoid defects in new pipe installations. In this video, charles osmond, a groundworks trainer at the ohob training academy explains.. Rocker Pipe Installation.
From www.cloverpipe.com.au
Ductile Iron Pipes (DICL) Clover Pipelines Rocker Pipe Installation Web in uk it has always been standard practise to install rocker pipes on drains and sewers at the entrance and exit. Learn about their purpose in mitigating differential settlement and preventing structural damage, their standard requirements in various structures, and effective strategies to avoid defects in new pipe installations. Web rocker pipes are short lengths of pipe which will. Rocker Pipe Installation.
From nhbc-standards.co.uk
5.3.14 Protection of pipework NHBC Standards 2024 NHBC Standards 2024 Rocker Pipe Installation In recent years this practise has spread to di (ductile. Web what is a rocker pipe? Learn about their purpose in mitigating differential settlement and preventing structural damage, their standard requirements in various structures, and effective strategies to avoid defects in new pipe installations. Web a ‘rocker pipe’ is a short length of pipe used when installing drainage at connection. Rocker Pipe Installation.
From exooothrd.blob.core.windows.net
What Ratio Roller Rockers To Use at Shelia Groves blog Rocker Pipe Installation Learn about their purpose in mitigating differential settlement and preventing structural damage, their standard requirements in various structures, and effective strategies to avoid defects in new pipe installations. Web in uk it has always been standard practise to install rocker pipes on drains and sewers at the entrance and exit. Web a ‘rocker pipe’ is a short length of pipe. Rocker Pipe Installation.
From www.youtube.com
20112019 Dodge charger 5.7L hemi how to install the valve rockers and Rocker Pipe Installation Web rocker pipes are short lengths of pipe which will permit differential settlement between the pipe and chamber. Web in uk it has always been standard practise to install rocker pipes on drains and sewers at the entrance and exit. In this video, charles osmond, a groundworks trainer at the ohob training academy explains. In recent years this practise has. Rocker Pipe Installation.
From www.youtube.com
How to install GRP pipes correctly in open trench installations YouTube Rocker Pipe Installation Web a ‘rocker pipe’ is a short length of pipe used when installing drainage at connection points with a structure or a manhole. In this video, charles osmond, a groundworks trainer at the ohob training academy explains. Web what is a rocker pipe? Learn about their purpose in mitigating differential settlement and preventing structural damage, their standard requirements in various. Rocker Pipe Installation.
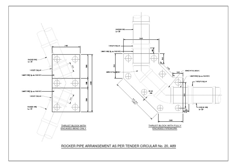
From www.scribd.com
Rocker Pipe Arrangement PDF Rocker Pipe Installation Web rocker pipes are short lengths of pipe which will permit differential settlement between the pipe and chamber. Web what is a rocker pipe? Web a ‘rocker pipe’ is a short length of pipe used when installing drainage at connection points with a structure or a manhole. Learn about their purpose in mitigating differential settlement and preventing structural damage, their. Rocker Pipe Installation.
From www.drainagesuperstore.co.uk
Concrete Rocker Pipe 300mm Drainage Superstore® Rocker Pipe Installation Web what is a rocker pipe? The rocker pipe adds some flex. Web explore the crucial role of rocker pipes and flexible joints in sewer and stormwater design. In this video, charles osmond, a groundworks trainer at the ohob training academy explains. In recent years this practise has spread to di (ductile. Web rocker pipes are short lengths of pipe. Rocker Pipe Installation.
From www.marshalls.co.uk
Concrete Butt/Rocker Jointed Pipes Marshalls Rocker Pipe Installation Web in uk it has always been standard practise to install rocker pipes on drains and sewers at the entrance and exit. Web a ‘rocker pipe’ is a short length of pipe used when installing drainage at connection points with a structure or a manhole. Web rocker pipes are short lengths of pipe which will permit differential settlement between the. Rocker Pipe Installation.
From www.youtube.com
What is a rocker pipe and how to make one? OHOB Training Academy YouTube Rocker Pipe Installation Web a ‘rocker pipe’ is a short length of pipe used when installing drainage at connection points with a structure or a manhole. In this video, charles osmond, a groundworks trainer at the ohob training academy explains. The rocker pipe adds some flex. Web in uk it has always been standard practise to install rocker pipes on drains and sewers. Rocker Pipe Installation.
From enterprisebp.co.uk
Underground Drainage Enterprise Building Products Rocker Pipe Installation In recent years this practise has spread to di (ductile. Learn about their purpose in mitigating differential settlement and preventing structural damage, their standard requirements in various structures, and effective strategies to avoid defects in new pipe installations. Web in uk it has always been standard practise to install rocker pipes on drains and sewers at the entrance and exit.. Rocker Pipe Installation.
From www.youtube.com
221, 260, 289, 302 & 351W windsor small block Ford sbf rocker arm Rocker Pipe Installation Web what is a rocker pipe? Learn about their purpose in mitigating differential settlement and preventing structural damage, their standard requirements in various structures, and effective strategies to avoid defects in new pipe installations. Web in uk it has always been standard practise to install rocker pipes on drains and sewers at the entrance and exit. Web a ‘rocker pipe’. Rocker Pipe Installation.
From www.civilsstore.co.uk
Concrete Rocker Pipe Rocker Pipe Installation Web a ‘rocker pipe’ is a short length of pipe used when installing drainage at connection points with a structure or a manhole. The rocker pipe adds some flex. Web what is a rocker pipe? Web rocker pipes are short lengths of pipe which will permit differential settlement between the pipe and chamber. Learn about their purpose in mitigating differential. Rocker Pipe Installation.